Monday, January 18, 2021

Plan Maison 130M2 4 Chambres / Plan De Plans De Maison Moderne 4 Chambres A Telecharger Villa Paziol Archionline / Et il est également caractéristiques cadres de fenêtre:

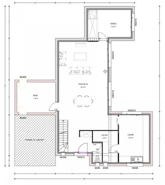
Plan Maison 130M2 4 Chambres / Plan De Plans De Maison Moderne 4 Chambres A Telecharger Villa Paziol Archionline / Et il est également caractéristiques cadres de fenêtre:. 1 chambre 2 chambres 3 chambres 4 chambres 5 chambres et +. Découvrez sur le site constructeurdemaison.net, de nombreux plans de maisons ayant 4 chambres au minimum à télécharger gratuitement en ligne. Plan maison 4 chambres 130m2. Elle se compose d'une grande entrée de 15 m2, d'un salon de 24 m2, d'une cuisine équipée, de 4 chambres, d'un bureau avec mezzanine, d'une salle de bain et d'un wc. Le jardin est idéal pour les jeux d'enfants.

Avec quatre grandes chambres, cette maison spacieuse de 130 m² conviendra à une famille nombreuse soucieuse de son confort. Décrivez votre projet et gagnez du temps, nous trouvons pour vous les pièces : Dossier gratuit de consultation des plans detailles. Découvrez vite ce modèle 100 une grande cuisine de plus de 11m2 permet de profiter des repas en famille. 199 plans cotés à télécharger pour faire construire votre maison.

Vente Maison 6 Pieces 130 M 215 778 Asse Le Boisne 72
Vente Maison 6 Pieces 130 M 215 778 Asse Le Boisne 72 from thbr.figarocms.net
L'architecture et la structure sont traditionnelles et l'isolation performante. Dossier gratuit de consultation des plans detailles. Voir les plans de 4. Découvrez sur le site constructeurdemaison.net, de nombreux plans de maisons ayant 4 chambres au minimum à télécharger gratuitement en ligne. Plan maison plein pied 90m2. Accueil > plans de maison > plan maison 4 chambres. Plans de maisons 3d, logiciel pour faire un plan de maison gratuit, plans architecte pour construction plein pied, étage, moderne, en l, bois, etc. Il y a 4 chambres comportant chacune 2 couchages (3 lits doubles et 2 lits simples), des placards.

Trouvez votre plan de maison en fonction du style (contemporain ou traditionnel), du nombre de chambres découvrez nos plans et modèles de maisons et trouvez la vôtre en fonction de son style (contemporain ou traditionnel) voir ce modele en detail.

1 chambre 2 chambres 3 chambres 4 chambres 5 chambres et +. Annotations et modifications du plan (si nécessaire). Plus de 124 m2 habitables et un plan de maison optimisé. 199 plans cotés à télécharger pour faire construire votre maison. Aluminium, jardin, fireplace, a / c, cadres, ouvert. Maison 130 m² habitable comprenant 2 box avec mezzanine, garage industriel , magasin vitrine sur rue avec parking. Sign in | create account. Le plan de façade est le 4e plan de maison que vous devez fournir avec votre demande de permis de construire. Accueil > plans de maison > plan maison 4 chambres. Au premier étage, un palier dessert deux belles chambres avec parquet au sol, une salle de bains et un toilette. Dessinez votre plan de maison ou d'appartement facilement. Plan appartement 2 chambres gratuit. Le jardin est idéal pour les jeux d'enfants.

Découvrez vite ce modèle 100 une grande cuisine de plus de 11m2 permet de profiter des repas en famille. Voir les plans de 4. Plan de maison avec 4 chambres. Au premier étage, un palier dessert deux belles chambres avec parquet au sol, une salle de bains et un toilette. Avec ses 4 chambres et 8 couchages, cette maison est le lieu idéal pour organiser le séjour d'un groupe.

Plan Maison 4 Chambres 130m2 Plan Maison 4 Chambres Plan Maison Plan De Maison Fonctionnelle
Plan Maison 4 Chambres 130m2 Plan Maison 4 Chambres Plan Maison Plan De Maison Fonctionnelle from i.pinimg.com
Le plan de façade est le 4e plan de maison que vous devez fournir avec votre demande de permis de construire. Tous les plans de maisons (199 plans) Plan maison 4 chambres 130m2. 159 plans de maisons originales, contemporaines, modernes ou traditionnelles et des plans gratuits. Située au teich dans un environnement calme et proche des commodités, maison familiale d'une superficie habitable de 130 m2. Au premier étage, un palier dessert deux belles chambres avec parquet au sol, une salle de bains et un toilette. Plan maison plein pied 90m2. Maisons modernes, traditionnelles ou maisons contemporaines… trouvez l'inspiration parmi notre collection de plans de maisons gratuits.

Plans de maisons 3d, logiciel pour faire un plan de maison gratuit, plans architecte pour construction plein pied, étage, moderne, en l, bois, etc.

Plans de maisons 3d, logiciel pour faire un plan de maison gratuit, plans architecte pour construction plein pied, étage, moderne, en l, bois, etc. Voir les plans de 4. Plan maison 130m2 posez vos questions, découvrez les réponses & discussions autour de votre maison grâce aux experts de plans.fr. Découvrez vite ce modèle 100 une grande cuisine de plus de 11m2 permet de profiter des repas en famille. Trouvez votre plan de maison dans notre catalogue de plans 3d à télécharger. L'architecture et la structure sont traditionnelles et l'isolation performante. Située au teich dans un environnement calme et proche des commodités, maison familiale d'une superficie habitable de 130 m2. Nous proposons une jolie maison dans les alpes de haute provence à 5 min de barcelonnette aux alentours: Sign in | create account. Aluminium, jardin, fireplace, a / c, cadres, ouvert. Tous les plans de maisons (199 plans) Maisons modernes, traditionnelles ou maisons contemporaines… trouvez l'inspiration parmi notre collection de plans de maisons gratuits. Décrivez votre projet et gagnez du temps, nous trouvons pour vous les pièces :

Le plan de façade est le 4e plan de maison que vous devez fournir avec votre demande de permis de construire. Trouvez votre plan de maison en fonction du style (contemporain ou traditionnel), du nombre de chambres découvrez nos plans et modèles de maisons et trouvez la vôtre en fonction de son style (contemporain ou traditionnel) voir ce modele en detail. 4 à 5 chambres+ |120 à 130 m2. Voir cette épingle et d'autres images dans plan maisons neuves par lami e fee lily. Plan maison 130m2 posez vos questions, découvrez les réponses & discussions autour de votre maison grâce aux experts de plans.fr.

Plan Maison 130m2 Postcoitum Avec Billes Polystyrene Castorama Agencecormierdelauniere Com Agencecormierdelauniere Com
Plan Maison 130m2 Postcoitum Avec Billes Polystyrene Castorama Agencecormierdelauniere Com Agencecormierdelauniere Com from www.agencecormierdelauniere.com
13019 plans de 110 à 130 m2 gratuit à télécharger et à modifier avec archifacile. Voir l'adresse du bien sur une carte. Le plan de façade est le 4e plan de maison que vous devez fournir avec votre demande de permis de construire. Plan maison 4 chambres 130m2. 199 plans cotés à télécharger pour faire construire votre maison. Découvrez sur le site constructeurdemaison.net, de nombreux plans de maisons ayant 4 chambres au minimum à télécharger gratuitement en ligne. Maison moderne de type 5. Maison de 120m2 sur un terrain de 1146m2 piscine a débordement 3 chambres barbecue 1 vélo 6 transats linge de lit et de toilette non compris l.

Découvrez en détail le plan n°130 de cette maison de 128m2 avec 4 chambres et téléchargez ce plan gratuitement en ligne sur le site kazaclik.

Nos plans de maisons gratuits à télécharger. Maison de 120m2 sur un terrain de 1146m2 piscine a débordement 3 chambres barbecue 1 vélo 6 transats linge de lit et de toilette non compris l. Sign in | create account. Le jardin est idéal pour les jeux d'enfants. Annotations et modifications du plan (si nécessaire). Trouvez votre plan de maison en fonction du style (contemporain ou traditionnel), du nombre de chambres découvrez nos plans et modèles de maisons et trouvez la vôtre en fonction de son style (contemporain ou traditionnel) voir ce modele en detail. Plan de maison avec 4 chambres. Certaines réalisations sont plus techniques que d'autres. Dessinez votre plan de maison ou d'appartement facilement. Voir cette épingle et d'autres images dans plan maisons neuves par lami e fee lily. Maison moderne de type 5. Le modèle arpege, maison à étage de 130m² avec 4 chambres dispose d'une agréable terrasse couverte. 4 à 5 chambres+ |120 à 130 m2.


EmoticonEmoticon